您當前位置:產品中心 >> 閘閥 >> 國標楔式閘閥
國標楔式閘閥
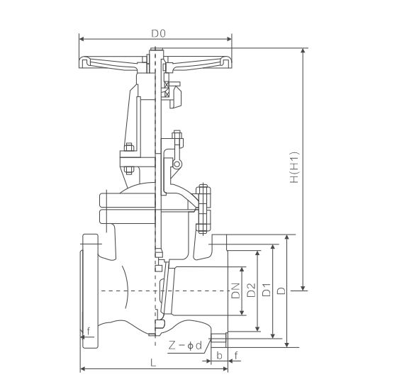
技術參數

產品型號:Z41H

公稱通徑:DN50~1200mm

壓力范圍:PN1.0~16.0MPa

工作溫度:-29℃~+600℃

主體材質:碳鋼、不銹鋼、合金鋼 

設計與制造:GB12234

結構長度:GB12221

法蘭尺寸:GB9113 JB79

壓力溫度:GB913

試驗檢驗:GB/T13927 、JB/T9092